
BoHome
Sanierung und Aufstockung Wohnungsbau in München
Auftraggeber: Dawonia Wohnungs-GmbH, München
Architekten: fabi architekten bda, Regensburg
Mitarbeit: Hanna Markgraf
Statik: IB Uhrmacher, Abensberg
Freianlagen: Staudtner & Schäf, München
Bauphysik/Brandschutz: Bauart, München
Planungszeit: Lph 1-4 01.2019-07.2020, Lph 5-6 10.2020-12.2021
Bauzeit: 02.2022-08.2023
Wohnfläche: ca. 1.150 m²
Baukosten: ca. 4,0 Mio €
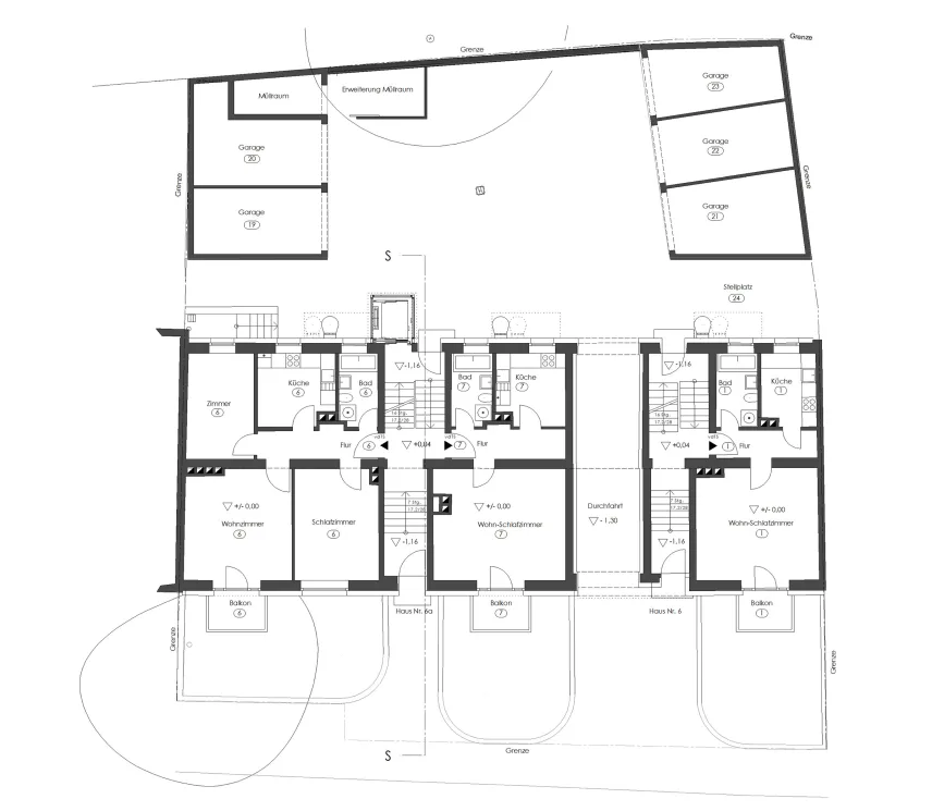
Das Gebäude aus der Bauzeit Mitte der 1950-er Jahre besteht aus zwei sechsgeschossigen Wohnhäusern mit 17 Wohnungen in bester Lage mitten in Münchens Schwabing-West zwischen Olympiapark und Englischen Garten.
Ziel des Projekts war es durch:
- Energetische Sanierung
- Ertüchtigung Brandschutz
- Optimierung Schallschutz
- Verbesserung der Barrierefreiheit
- Neugestaltung der Freiflächen
- Entwicklung eines gesamtheitlichen architektonischen Konzept
eine zeitgemäße Wohnqualität zu schaffen, welcher der besonderen urbanen Lage entspricht. Dies erforderte, das Gebäude in den Rohbauzustand zurückzuführen und komplett Kern zu sanieren. Die bereits guten Grundrisse des Bestands wurden durch geringfügige Eingriffe modifiziert und verbessert. So wurden die Küchen und Bäder vergrößert und somit deren Nutzung für die Bewohner deutlich verbessert. Alle Wohnungen erhielten eine Freifläche in Form von großzügigen Balkonen zur Südseite. Im Innenhof wurde ein Glasaufzug erstellt, der die Erreichbarkeit der Wohnungen verbessert. Die Treppenhäuser aus den 1950 Jahren wurden behutsam saniert und die Sicherheitsanforderungen der Geländer zeitgemäß adaptiert.
Der im Bestand nichtausgebaute Dachraum wurde minimal angehoben und zu einer großen, hochmodernen, hellen Loftwohnung mit 6 Zimmern, 2 Bädern und großer Dachloggia umgestaltet.
Farb- und Materialkonzept
Die bestehenden Natursteinelemente (Tor-und Türeinfassungen) werden gestalterisch beibehalten, ebenso die Natursteinwandverkleidungen im Treppenhaus. Diese strahlen eine natürliche und hochwertige Wirkung bereits im Bereich der Eingänge aus. Diese Thematik wurde für die weitere Farbgebung der Fassade aufgegriffen und der Farbton dem Naturstein entspr. angepasst. Die Fensterrahmen, sowie die metallischen Elemente im Bereich der Fassade sind in einem Bronzefarbton gehalten und heben die Wertigkeit der Gesamtgestaltung weiter an. Die Brüstungselemente der Balkone sind in Rauchglasoptik, leicht transparent für mehr Raumbelichtung, aber dennoch blickgeschützt ausgeführt. Das natürliche, harmonische und schlichte Zusammenspiel der Materialien, wird bei der Innenraumgestaltung weitergeführt.











