
framed
Neubau Wohnhaus in Traunstein
Planung LPH 1-4, Ausführungsberatung: fabi architekten bda
Innenarchitektur, Einbaumöbel, Außenanlagenplanung: fabi architekten bda
Mitarbeiter: Jonas Icsezer
Haustechnik: Gasbrennwerttherme mit Solarthermieunterstützung, zentrale kontrollierte Wohnraumlüftung mit Wärmerückgewinnung
Energiestandard: KfW 55 - Effizienzhaus
Planungszeit LPH1-4: Oktober 2018 – März 2019
Bauzeit: Juni 2019 - Oktober 2020
Wohnfläche: 255,00 qm
Grundstücksfläche 854,00 qm
Veröffentlichungen:
| Lifestyles Today, BraunPublishing, 01.2022 | PDF/5,9 MB | |
| high on home design, 2022 | PDF/2,4 MB | |
| Contemporary Architecture – Masterpieces around the World, 2022 | PDF/1,1 MB | |
| CUBE 02/2023 | PDF/1,4 MB | |
| Cube Select 03/2023 | PDF/1,3 MB |
Das Grundstück befindet sich am südlichen Stadtrand von Traunstein. Die nahe davon liegenden Straßen mit den Namen Kampenwand– und Chiemseestraße, verraten den unmittelbaren Kontext. Die etwas erhöhte Hanglage des Baugrundstücks fordert einen Baukörper, der den Focus auf diesen Kontext setzen kann.
Gleichzeitig soll sich das Haus in die Landschaft und in das Hanggrundstück sensibel einfügen und ressourcenschonend mit dem Gelände agieren. Deshalb wird das Gebäudevolumen materiell gegliedert, die Holzverkleidung des oberen Volumens zitiert Natürlichkeit. Die Außenraumnutzung wird dem Grundstück entsprechend angepasst. Zwei Terrassenebenen werden über eine Außentreppe mit dem Garten fließend verbunden.
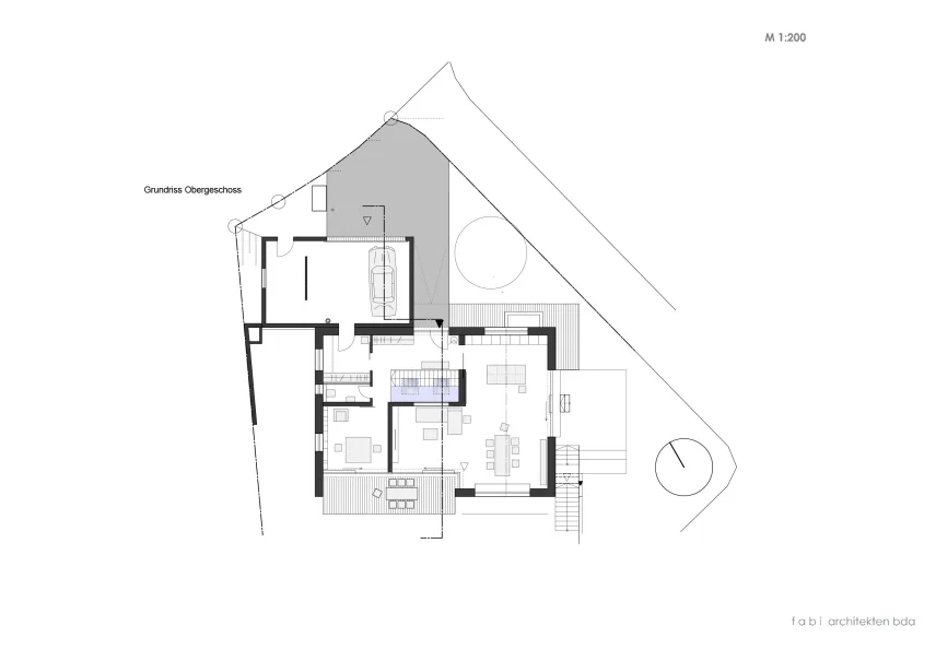
Das Obergeschoss ist Eingangs- und Wohnebene. Es wird als raumhaltiger, luftiger, mit Holzschalung verkleideter Satteldachbaukörper ausgeformt, welcher über das darunterliegende Gartengeschoss auskragt. Es wendet sich sozusagen der Aussichtskulisse der Kampenwand und den Chiemgauer Alpen zu und holt durch große, gezielt gesetzte Fensteröffnungen den Blick direkt ins Haus. Verstärkt wird dieser Effekt noch durch einen Loggia-Ausschnitt, der durch eine auskragende Plattform erweitert ist. Der entstehende schwebende Eindruck dieses Außenraums lässt die Umgebung noch unmittelbarer auf den Betrachter wirken.
Das untere Gartengeschoss nimmt die Individualräume und Nebenräume auf. Die hangseitig liegende einläufige Treppe erhält über einen Luftraum bis nach unten Tageslicht. Diese zurückspringende Geschossebene ist in der Fassade dunkelgrau abgesetzt und bildet für die Gartenterrasse einen ruhigen, behaglichen Hintergrund, sowie einen überdachten Freiraum.




















